POLO DIREZIONALE DE CECCO
NUOVA SEDE FATER SPA - PESCARA
PROGETTO ARCHITETTONICO
ARCH. MASSIMILIANO FUKSAS
IMPRESA ESECUTRICE IM.A.R. SRL
PROGETTO STRUTTURE
ING. CLAUDIO TONIOLO







----------------------------------------
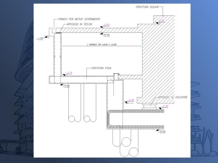
Seguono alcune slide tratte dalla relazione tecnica tenuta a Build UP Expo 2007
da Ing. C. Toniolo e Ing. P. Bertacchini
Per gentile concessione Studio Claudio Toniolo


























































































































































































































Per inviare un messaggio: hsh@iperv.it