|
Oggetto dell’analisi è la verifica della vulnerabilità sismica di edifici scolastici di competenza provinciale presso l’istituto Tecnico Commerciale e per Geometri “FLORIANI” di Riva del Garda. (p. ed. 1127 C.C. Riva del Garda). Obbiettivo ultimo è definire due valori di accelerazione al suolo PGADS e PGADL per i due stati limite considerati. |
|
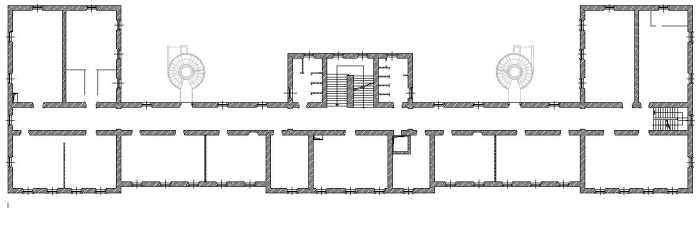
L’edificio è una ex caserma di costruzione austro – ungarica realizzata con muratura portante in pietra, solai ad avvolto su una parte del piano rialzato, in legno ed a volterrane per gli altri piani e tetto a struttura portante in legno con copertura in tegole marsigliesi.
Si caratterizza morfologicamente per la presenza di un corpo centrale che attraverso due ali si collega a due corpi laterali.
|

|
L'immobile si sviluppa su quattro piani fuori terra più sottotetto non abitabile e dispone di un piano interrato in corrispondenza del corpo centrale. La struttura presenta una distribuzione in pianta regolare a salire dal piano terra fino al piano di copertura con setti di spessore omogeneo piano per piano. In particolare la muratura presente dal piano fondazioni fino all’imposta del primo solaio ha spessore “finito” pari a 75 cm, quella presente sui due piani successivi presenta spessore di 58 cm e infine la muratura presente sull’ultimo piano dell’edificio e fino alla copertura ha uno spessore finito pari a 50 cm.
I solai di piano sono stati oggetti di interventi di consolidamento in periodi diversi. L’edificio scolastico non può essere considerato regolare principalmente perché non presenta in pianta una configurazione compatta e perché presenta significative differenze di rigidezza delle pareti portanti interne dovuta all’apertura di fori porta in maniera non allineata ai vari piani dell’edificio.
Il modello strutturale dell’edificio scolastico è stato effettuato mediante la modellazione con elementi beam dei maschi murari presenti
Gli elementi maschio murario ad asse verticale e gli elementi trave-cordolo (ad asse orizzontale) sono stati modellati con elementi beam a comportamento bilineare elastico perfettamente plastico deformabili assialmente e a taglio. Per simulare il comportamento rigido del nodo tra maschio murario e trave cordolo sono stati impiegati elementi definiti “rigid–link” che schematizzano aste infinitamente rigide nello spazio.
Partendo da tale schematizzazione è stata avviata una procedura per passi successivi che a partire da una distribuzione prefissata di forze orizzontali applicate alla struttura individua i maschi murari che raggiungono il limite elastico. Ad ogni passo viene calcolato il moltiplicatore dei carichi orizzontali che porta a plasticizzazione del primo maschio. Alla fine di ogni incremento di carico per impostare il passo successivo le estremità superiore ed inferiore del maschio che ha raggiunto il limite elastico vengono liberate alla rotazione. La procedura ha fine quando il sistema strutturale diventa un meccanismo labile.
Le analisi push-over sono state condotte applicando alla struttura forze orizzontali agenti nelle due direzioni principali X e Y. La distribuzione delle forze è stata valutata, in accordo con quanto previsto dalla normativa (par. 4.5.4.2 – O.P.C.M 3431) secondo le seguenti modalità:
1) una distribuzione di forze proporzionale alle masse;
2) una distribuzione di forze proporzionale al prodotto delle masse per la deformata corrispondente al primo modo di vibrazione.
Nel grafico viene rappresentata la “curva di capacità” ridotta ad un sistema equivalente ad un grado di libertà alla quale si sovrappone la relativa “forma bilineare”.
|






Per inviare un messaggio: hsh@iperv.it